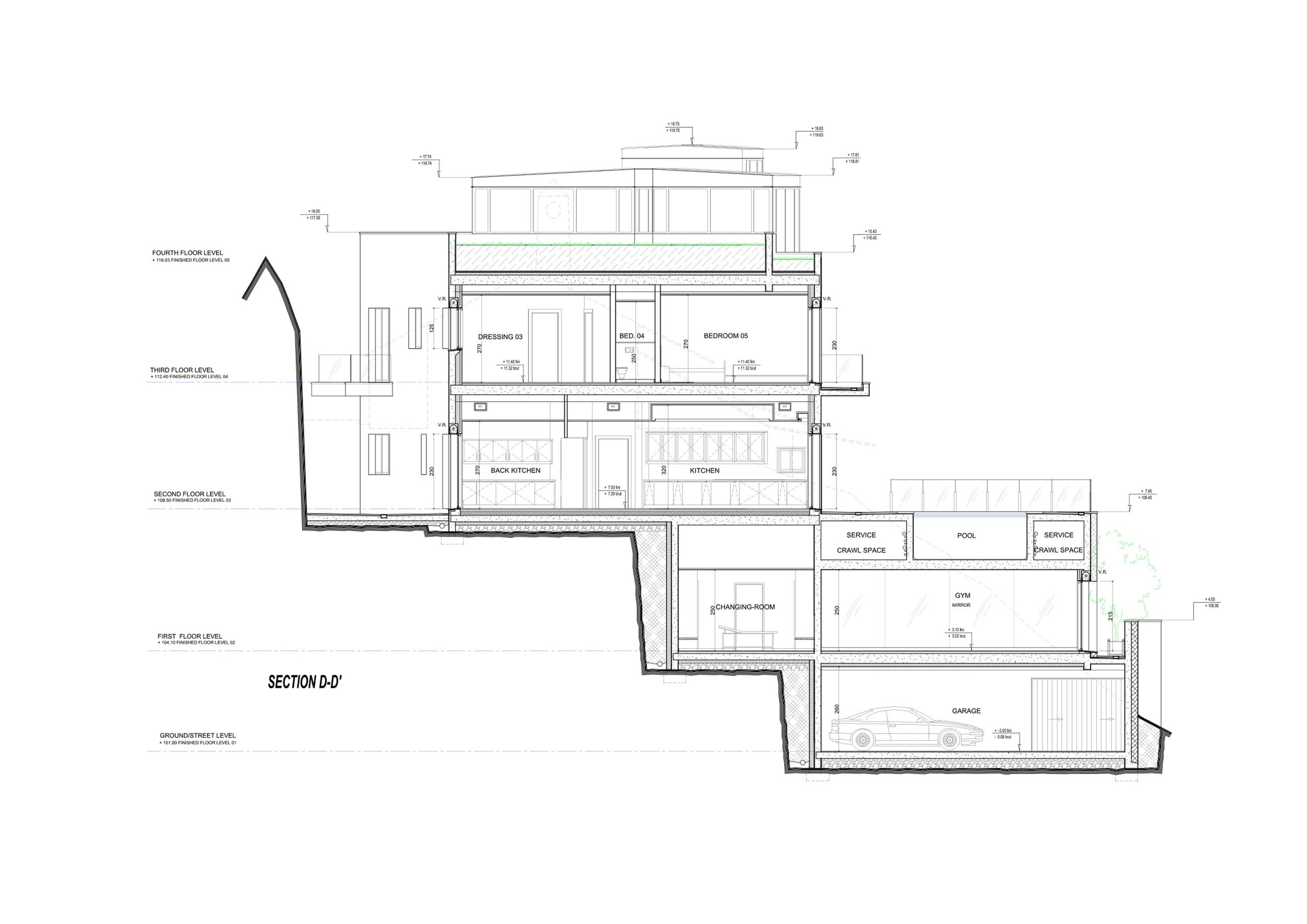
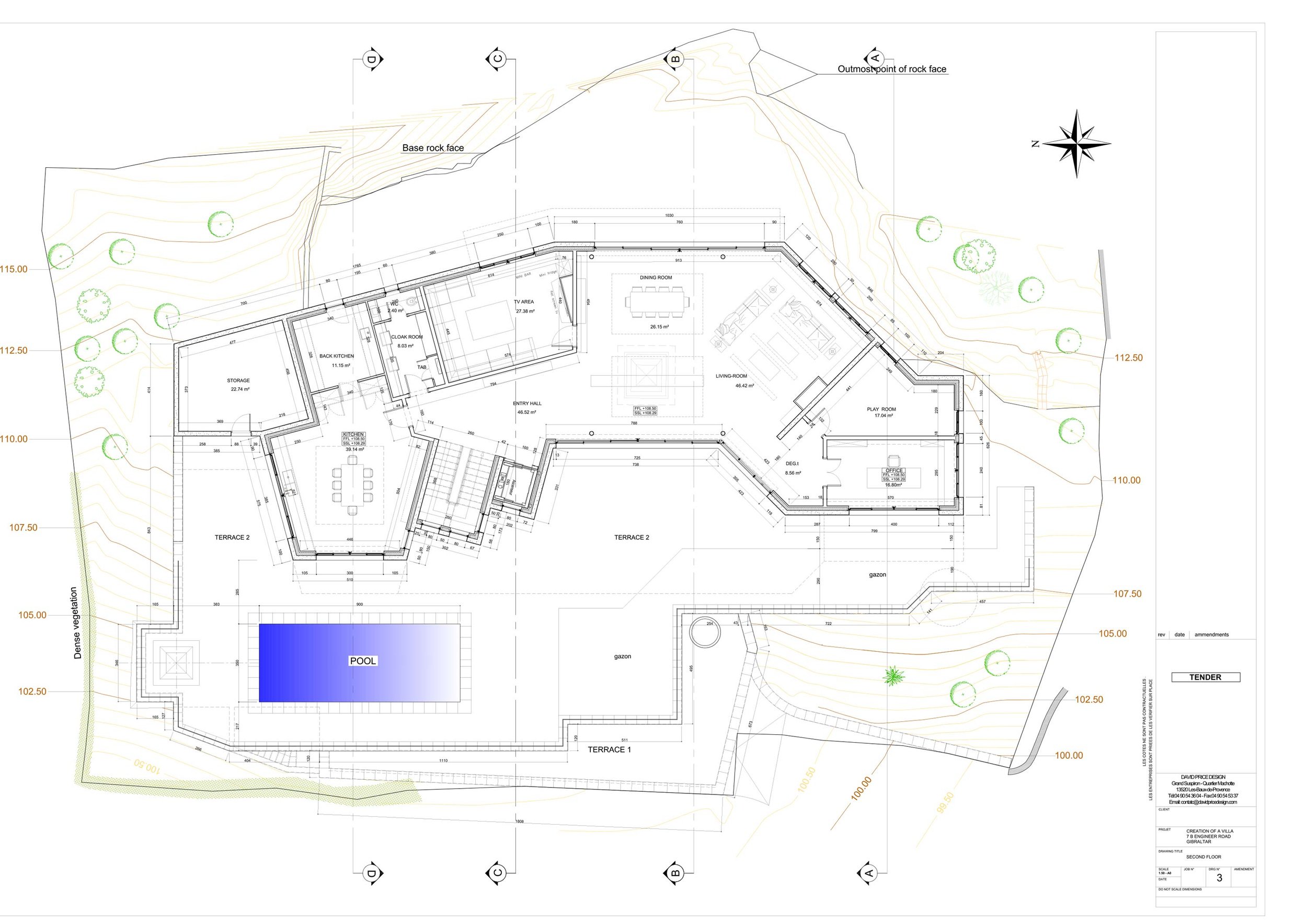
Maison contemporaine, Gibraltar

Cette maison très contemporaine de cinq étages, revêtue de pierre, est située sur le rocher de Gibraltar. Les différents niveaux permettent une entrée maximale de la lumière naturelle et offrent une vue magnifique sur la baie d'Algeciras jusqu'au Maroc.

















